Residential bungalow floor plan and electrical layout plan drawing details dwg file
Description
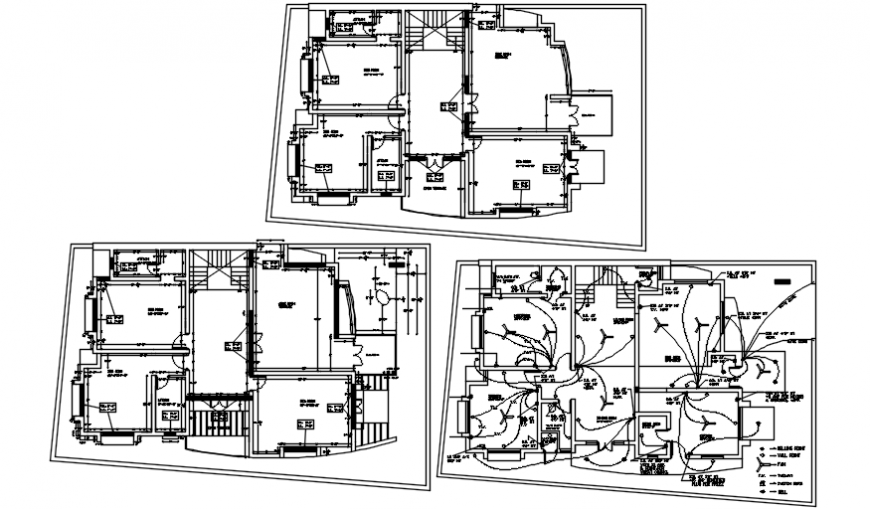
Residential bungalow floor plan and electrical layout plan drawing details that includes a detailed view of main entry house door, drawing room and living room with family hall details kitchen and dining area, indoor staircases and laundry area and balcony, details and bedroom or master bedroom, toilets and bathroom with computation and schedule of loads with general notes and specifications, panel board details, riser diagram with legends and electric equipment details and much more of bungalow details.
Uploaded by:
Eiz
Luna

