2d cad drawing of RCC sports club autocad software
Description
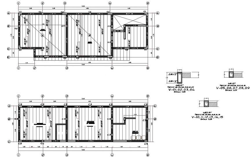
2d cad drawing of rcc sports club autocad software that includes the struture of school with proper pipes constructed and the beam been specified in red color with given dimensions and material represented.
Uploaded by:
Eiz
Luna
