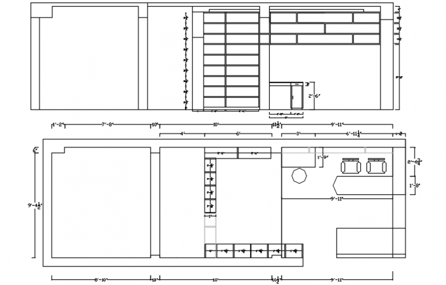
Office cabin layout plan, interior and structure details dwg file
Description
Office cabin layout plan, interior and structure details that include a detailed view of office framing plan along with staircase and area details along with furniture layout and employee blocks details colours details and size details, type details etc for multi-purpose uses for cad projects.
File Type:
DWG
File Size:
216 KB
Category::
Interior Design
Sub Category::
Modern Office Interior Design
type:
Gold
Uploaded by:
Eiz
Luna

