Toilet two plans and sanitary installation details dwg file
Description
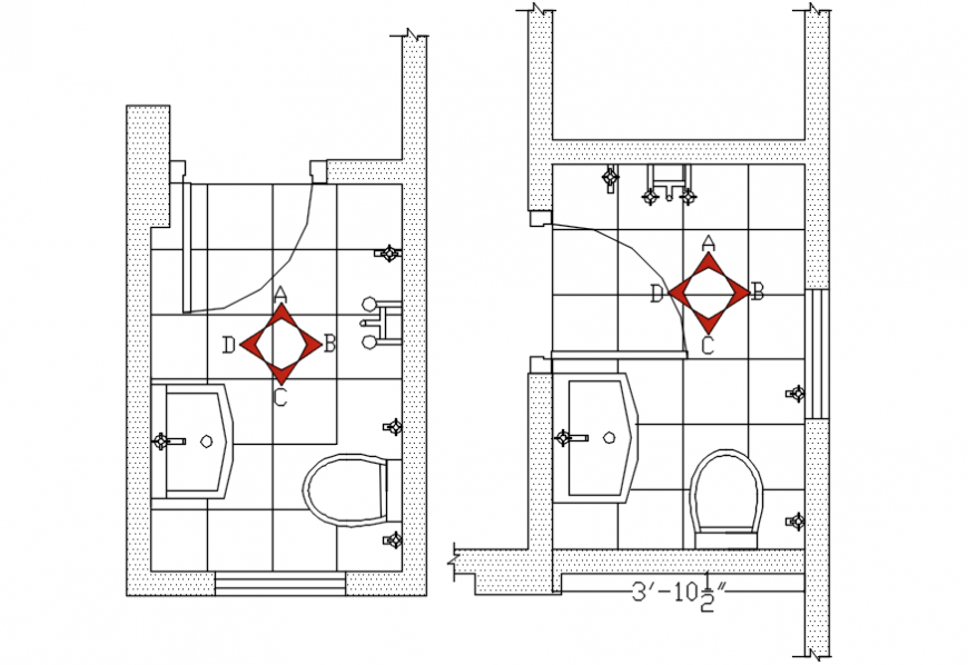
Toilet two plans and sanitary installation details here you can download a free auto-cad file of toilet plan details with sanitary equipment installation details, doors and ventilation details with plumbing details and interior details with dimensions details, wall section details and much more of sanitary installation details.
Uploaded by:
Eiz
Luna
