Multiple house furniture elevations and block drawing details dwg file
Description
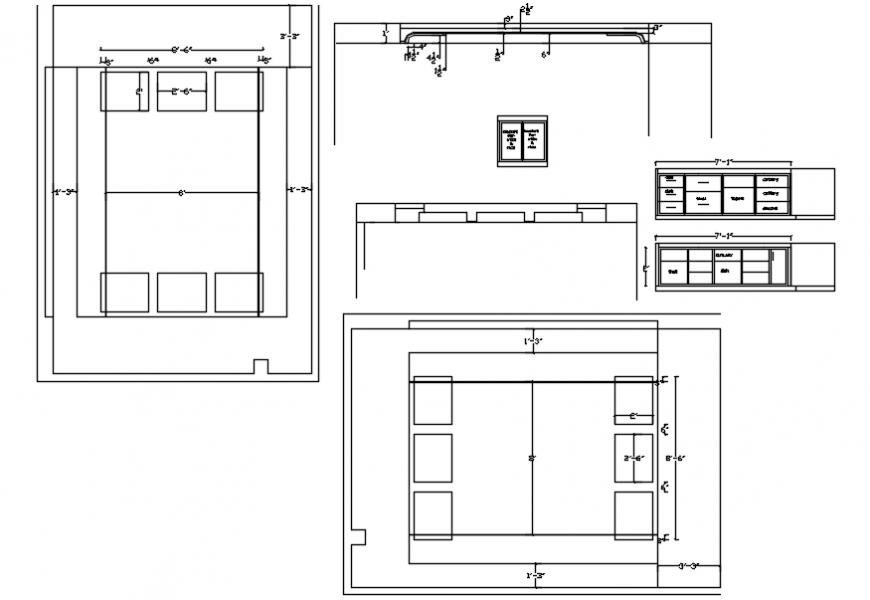
Multiple house furniture elevations and block drawing details that include a detailed view of multiple furniture like tables, cabinet elevations along with dimensions and shelvings with colours details and size details, type details etc for multi-purpose uses for cad projects.
Uploaded by:
Eiz
Luna

