Architecture villa residential layout plan autocad file
Description
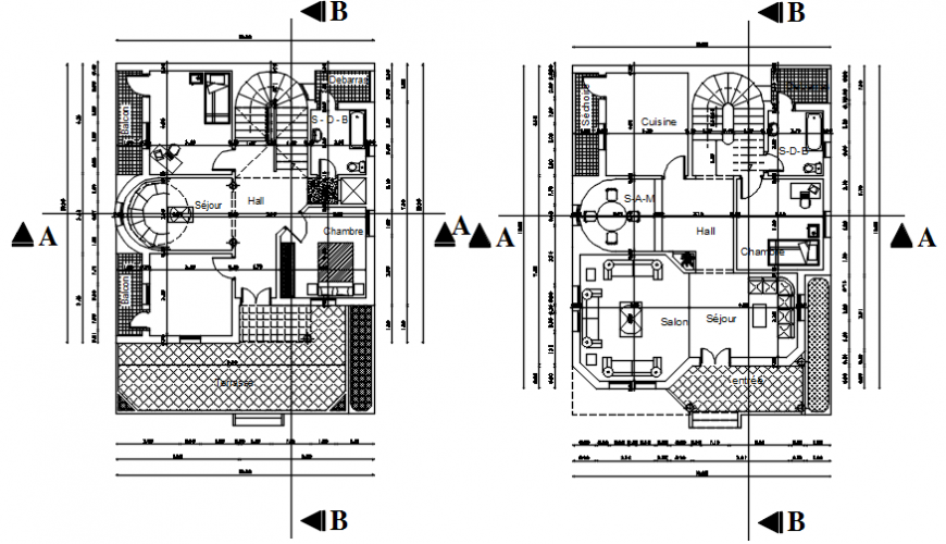
The architecture villa residential layout plan includes ground floor plan and first floor plan with all furniture detail of villa project.
Uploaded by:
Eiz
Luna
The architecture villa residential layout plan includes ground floor plan and first floor plan with all furniture detail of villa project.
Uploaded by:
Luna