Master bed front elevation cad drawing details dwg file
Description
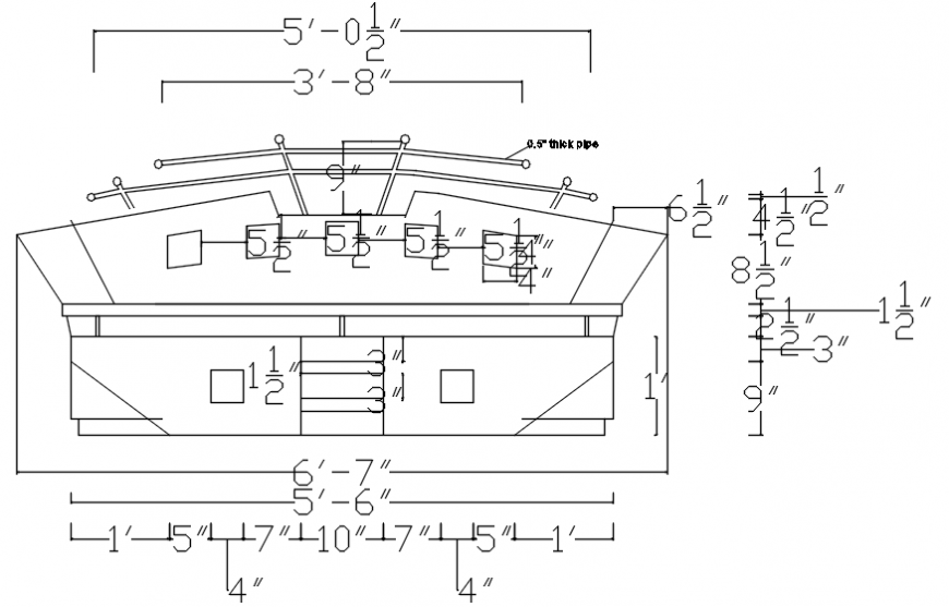
Master bed front elevation cad drawing details that include a detailed view of master bed front elevation along with dimensions etc with colours details and size details, type details etc for multi-purpose uses for cad projects.
Uploaded by:
Eiz
Luna

