Architecture bungalow design autocad file
Description
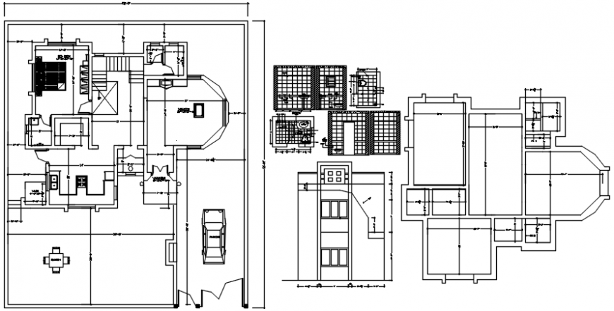
Find here top view of bungalow design, elevation design, structure plan, toilet detailing includes sanitary installation, sectional plan and much more detailing in cad file.
Uploaded by:
Eiz
Luna
Find here top view of bungalow design, elevation design, structure plan, toilet detailing includes sanitary installation, sectional plan and much more detailing in cad file.
Uploaded by:
Luna