2d cad drawing of floor level 2 shopping mall autocad software
Description
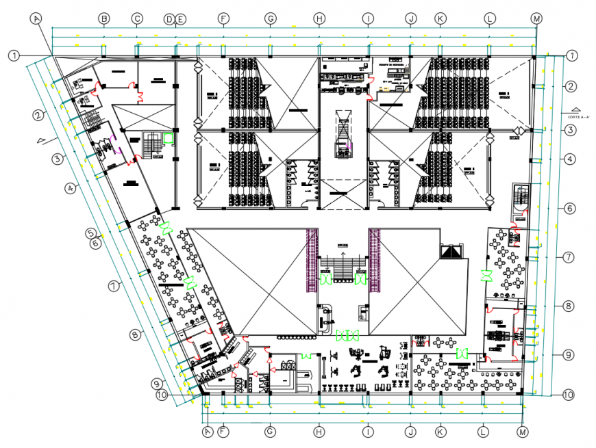
2d cad drawing of floor level 2 shopping mall autocad software tht includes a gym , restaurant with workspace kitchen area and another restaurant with sitting arrangements seprately.bar karaoke and cinema hall screening with seprate toilet area inside the cinema hall and open restaurant under an open roof.
Uploaded by:
Eiz
Luna

