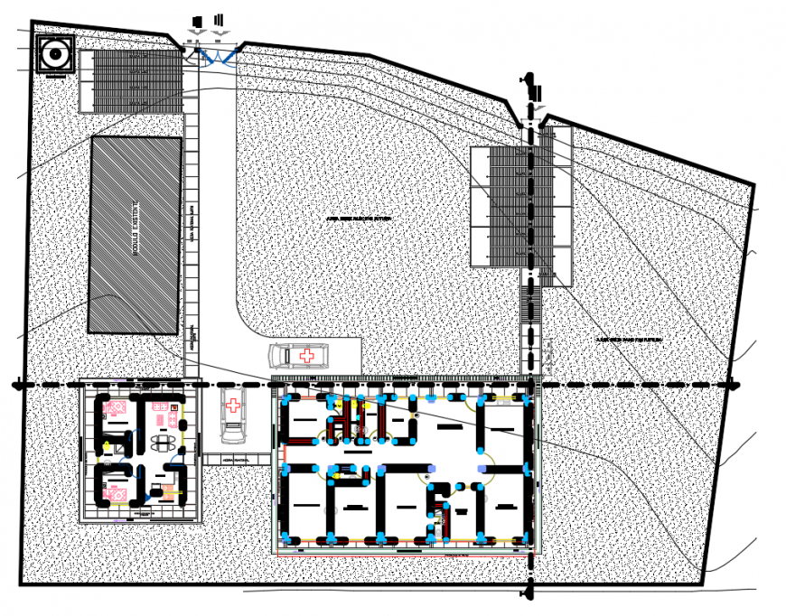
2d cad drawing of health post level autocad software
Description
2d cad drawing of health post level autocad software that shows the description of two single bed twoi bedroom with common toilet area and two seater sofa with dining area and kitchen layout and other wide area plot with garden.
Uploaded by:
Eiz
Luna

