2d CAD construction details of RCC structure dwg autocad file
Description
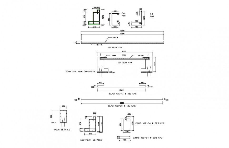
2d CAD construction details of RCC structure dwg autocad file that shows reinforcement details in tension and compression zone along with main and distribution hook up and bent up bars details with slab construction details and pier footing structure details also included in drawings.
File Type:
DWG
File Size:
154 KB
Category::
Construction
Sub Category::
Reinforced Cement Concrete Details
type:
Gold
Uploaded by:
Eiz
Luna

