Layout plan and section details of kitchen autocad software file
Description
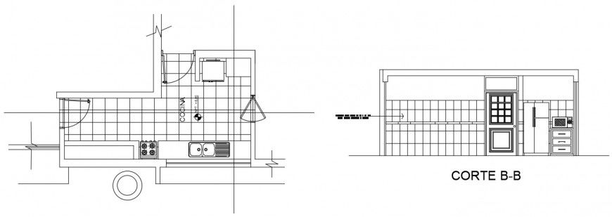
Layout plan and section details of kitchen autocad software file that shows kitchen furniture and automation blocks details also shown in drawings. Cabinet shelves details and kitchen sink with exhauster chimney details along with other details also included in drawings.
File Type:
DWG
File Size:
431 KB
Category::
Construction
Sub Category::
Kitchen And Remodeling Details
type:
Gold
Uploaded by:
Eiz
Luna

