Jewellery shop interior design autocad file
Description
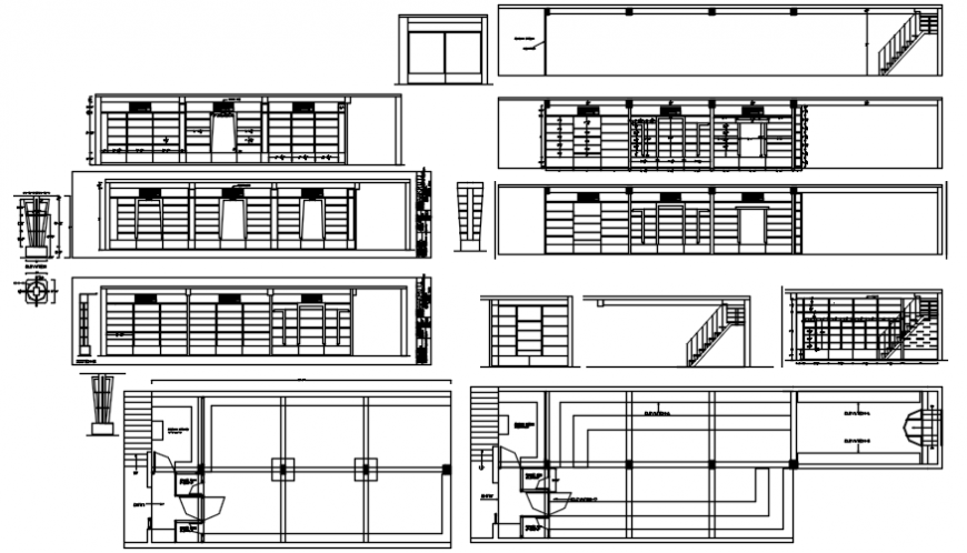
Jewellery shop all side wall interior design made in glass and wooden, get more detail about shop interior design in this cad file.
File Type:
DWG
File Size:
535 KB
Category::
Interior Design
Sub Category::
Showroom & Shop Interior
type:
Gold
Uploaded by:
Eiz
Luna

