Public Toilet Elevation Interior and Ceiling Detail Drawing AutoCAD
Description
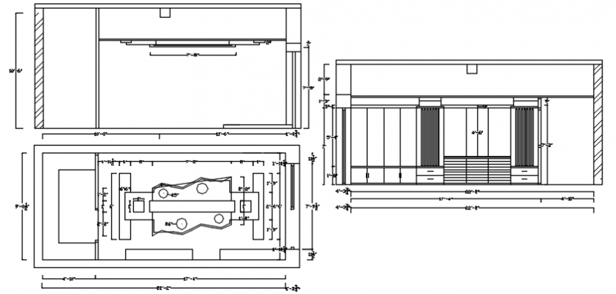
This AutoCAD DWG file presents detailed drawings of a public toilet building, including the main elevation, interior layout, and ceiling details. The drawing set clearly shows toilet planning with passage layout, sanitary fixture placement, door positioning, and ventilation arrangements. Interior views illustrate wash basins, water closets, and circulation clearances, while ceiling details support coordination of services and finishes. Dimension annotations, wall thickness references, and sectional indicators are provided for accurate construction and installation planning.
The public toilet drawing also includes sectional details, plumbing layouts, and sanitary equipment installation guidance to support proper execution on site. Wall section details, ventilation provisions, and plumbing connections are clearly represented to ensure functional and hygienic design standards. This DWG file is useful for architects, civil engineers, sanitation planners, and contractors involved in public utility and infrastructure projects. Drafted in precise 2D AutoCAD format, the file is fully editable and compatible with AutoCAD and other CAD-based software. With a Cadbull subscription, users can download this public toilet AutoCAD drawing along with a wide range of architectural and sanitary CAD resources for professional construction documentation.
File Type:
DWG
File Size:
303 KB
Category::
Interior Design
Sub Category::
Bathroom Interior Design
type:
Gold
Uploaded by:
Eiz
Luna

