Kitchen wall section with glass and sliding door cad structure details dwg file
Description
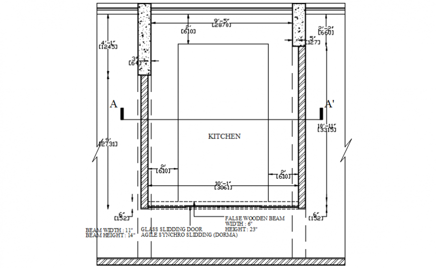
Kitchen wall section with glass and sliding door cad structure details that includes a detailed view of free auto-cad file with layer- wall core polystyrene base material thickness of layer of wall of to the base of concrete of thickness and concrete chain and much more of kitchen details.
File Type:
DWG
File Size:
38 KB
Category::
Construction
Sub Category::
Kitchen And Remodeling Details
type:
Gold
Uploaded by:
Eiz
Luna

