Kitchen back side constructive section cad drawing details dwg file
Description
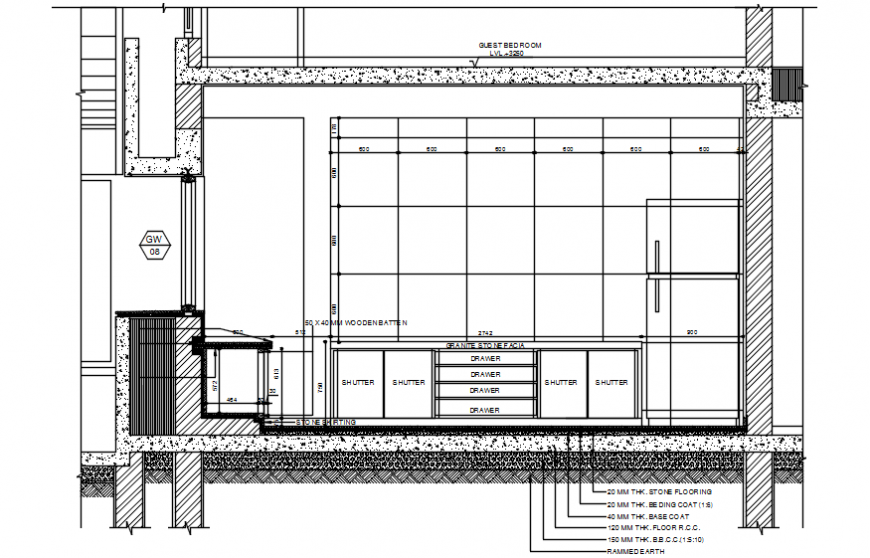
Kitchen back side constructive section cad drawing details that includes a detailed view of memory of materials, footings details, column view and beam construction, covers closure type with soil buried wall closure and interior partition and granite veneer of the country with steel supports, halfeneisen type with Brick partition with plaster plastering and Concrete wall and much more of kitchen details.
File Type:
DWG
File Size:
298 KB
Category::
Construction
Sub Category::
Kitchen And Remodeling Details
type:
Gold
Uploaded by:
Eiz
Luna

