Front construction wall
Description
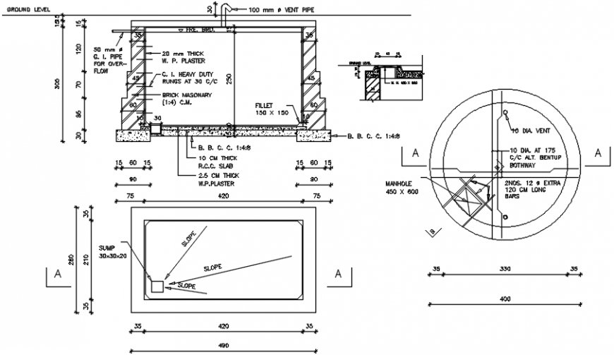
Front construction wall detail. here there is front sectional elevation detail of wall with section details in auto cad format
Uploaded by:
Eiz
Luna
Front construction wall detail. here there is front sectional elevation detail of wall with section details in auto cad format
Uploaded by:
Luna