CAD layout plan of house 2d view autocad software dwg file
Description
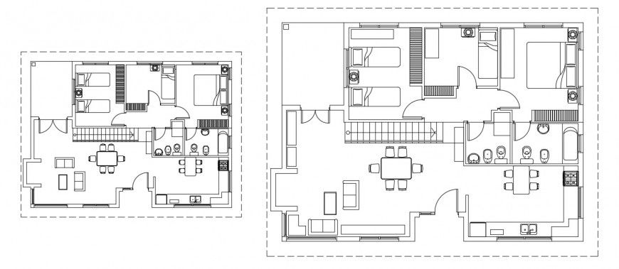
CAD layout plan of house 2d view autocad software file that shows housework plan drawings details along with room details of drawings room bedroom kitchen and dining area sanitary toilet and bathroom details. Floor level details with diemsnion details and door window blocks detail also included in drawings.
Uploaded by:
Eiz
Luna

