CAD sectional drawings of sanitary toilet autocad software file
Description
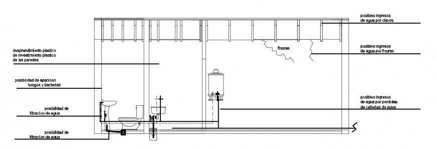
CAD sectional drawings of sanitary toilet autocad software file that shows sanitary bloks details of watercloset washbasin with wall flooring details. Pipe blocks details and other details are also shown in drawings.
File Type:
DWG
File Size:
7.2 MB
Category::
Dwg Cad Blocks
Sub Category::
Sanitary CAD Blocks And Model
type:
Gold
Uploaded by:
Eiz
Luna

