Master bed elevation, section and carpentry cad drawing details dwg file
Description
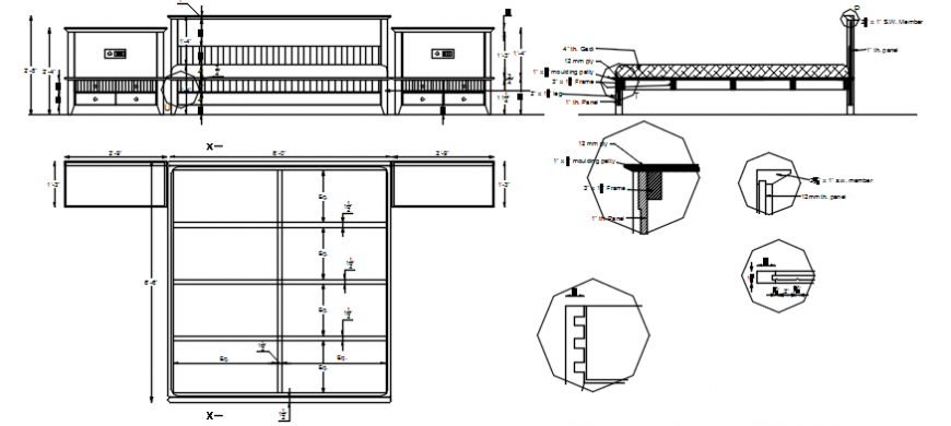
Master bed elevation, section and carpentry cad drawing details that include a detailed view of master bed elevation along with carpentry details, wooden sheet and structure details, dimensions and measure details etc with colours details and size details, type details etc for multi-purpose uses for cad projects.
Uploaded by:
Eiz
Luna

