Urban houses site plan and plotting cad drawing details dwg file
Description
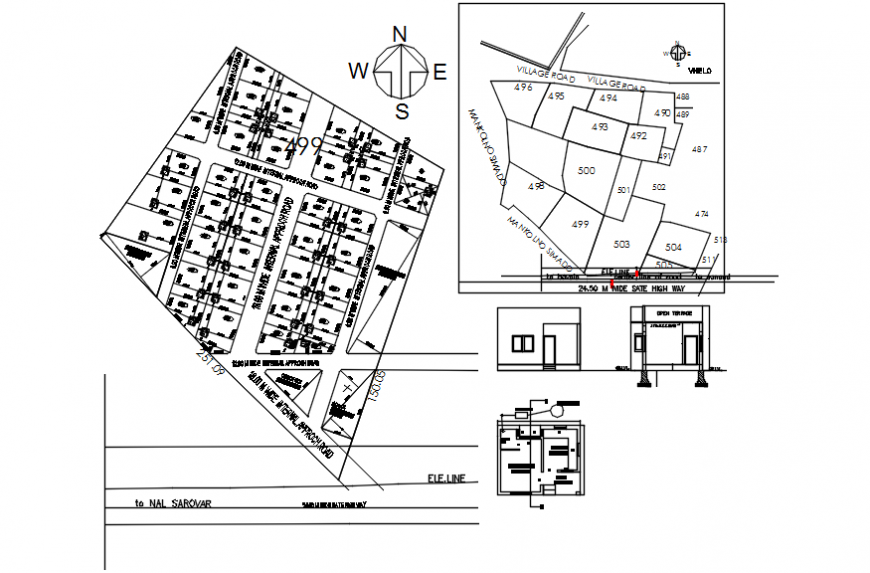
Urban houses site plan and plotting cad drawing details that inlcudes a detailed view of roads and street details, location map details, street and road numbers details, landmarks and landscaping structure details, particular building location details and much more of site plan details.
Uploaded by:
Eiz
Luna

