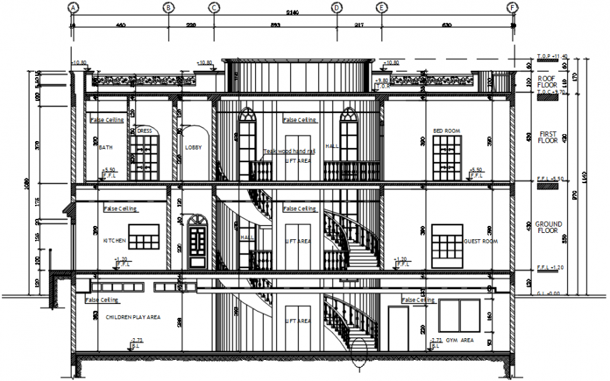
Section plan of multifamily house drawing cad file
Description
Front section plan cad drawing detail includes basement plan, ground floor plan, first floor plan, furniture detail, staircase detail, also use tradition railing design and all dimension detail in this project for use multipurpose cad project.
Uploaded by:
Eiz
Luna
