Electrical layout plan autocad file

Electrical layout plan autocad file
Profile

Uploaded by:

Eiz

Luna

Description

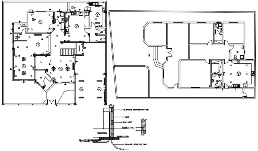
Find here electrical layout plan includes ceiling wire point, bulb point and fan point in autocad format.

Profile

Uploaded by:

Eiz

Luna

find Latest

Related Files

WhatsApp Chat