CAD 2d drawings details of water tank units construction dwg file
Description
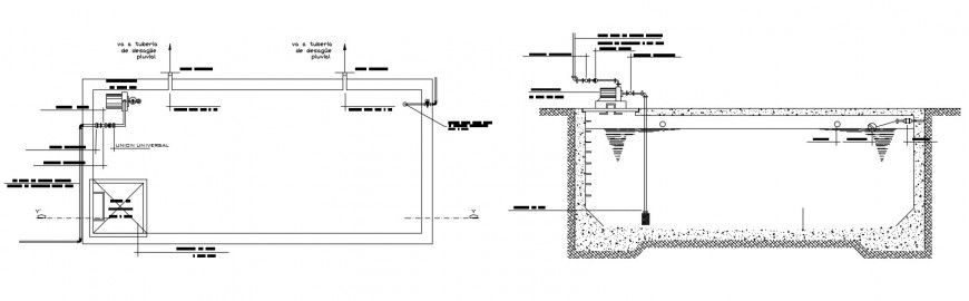
CAD 2d drawings details of water tank units construction dwg file that shows concrete masonry details with section line details and water level details with pipe blocks details and plumbing valve bracket electrical motor details.
Uploaded by:
Eiz
Luna

