CAD 2d construction details of roofing units dwg file
Description
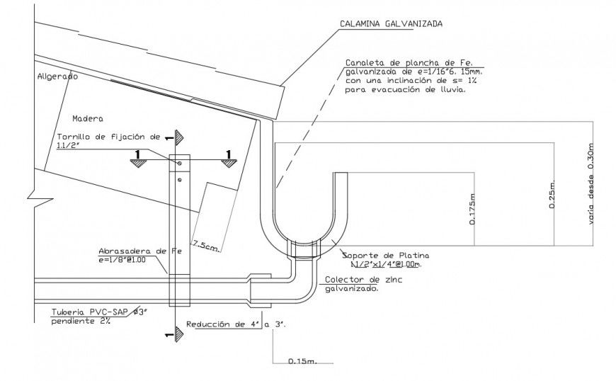
CAD 2d construction details of roofing units dwg file that shows roof structure purlin details with dimension naming texts details. Joints and connections dteuals along with main sag tie details and other units details of the roof also shown in drawings.
File Type:
DWG
File Size:
1.2 MB
Category::
Construction
Sub Category::
Construction Detail Drawings
type:
Gold
Uploaded by:
Eiz
Luna

