CAD drawing details of stairway construction dwg file
Description
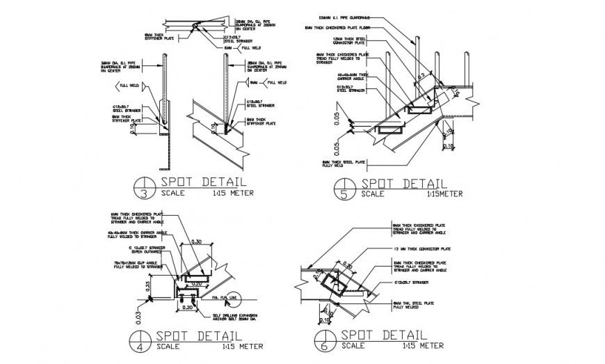
CAD drawing details of stairway construction dwg file that shows staircase construction details with riser tread details nd dimension hidden line details. Welded bolted joints connection details with steel brackets details also shown in the drawing.
Uploaded by:
Eiz
Luna

