Foundation plan detailing 2d view CAD RCC structure autocad file
Description
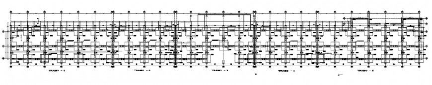
Foundation plan detailing 2d view CAD RCC structure autocad file that includes reinforcement details in tension-compression zone along with main and distribution hook up bent up bars detaisl along with bar dimension dteials and riser tread details along with riser height and tread width. the structure is a reinforced concrete cement (RCC) structure.
Uploaded by:
Eiz
Luna

