Hospital layout plan cad file
Description
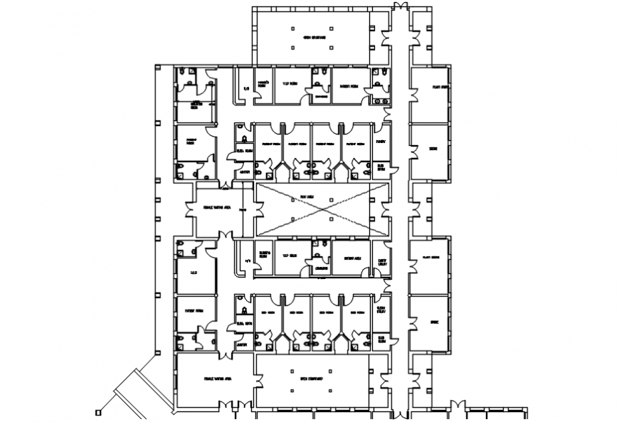
The architecture layout plan includes open courtyard, female waiting area, patient room, bedrooms and doctors cabin of hospital project in autocad format.
Uploaded by:
Eiz
Luna
The architecture layout plan includes open courtyard, female waiting area, patient room, bedrooms and doctors cabin of hospital project in autocad format.
Uploaded by:
Luna