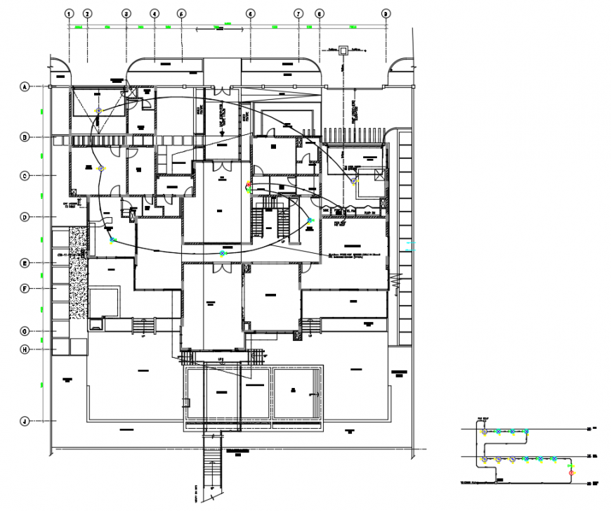
2 d cad drawing of first-floor lighting layout auto cad software
Description
2d cad drawing of first floor lighting layout autocad software detailed with color lines mentiones and connected in the drawing plan and descrioption detailed for ech room with prtoper dimeension given in the lighting plan.
Uploaded by:
Eiz
Luna

