2 d cad drawing of three bedroom apartment auto cad software
Description
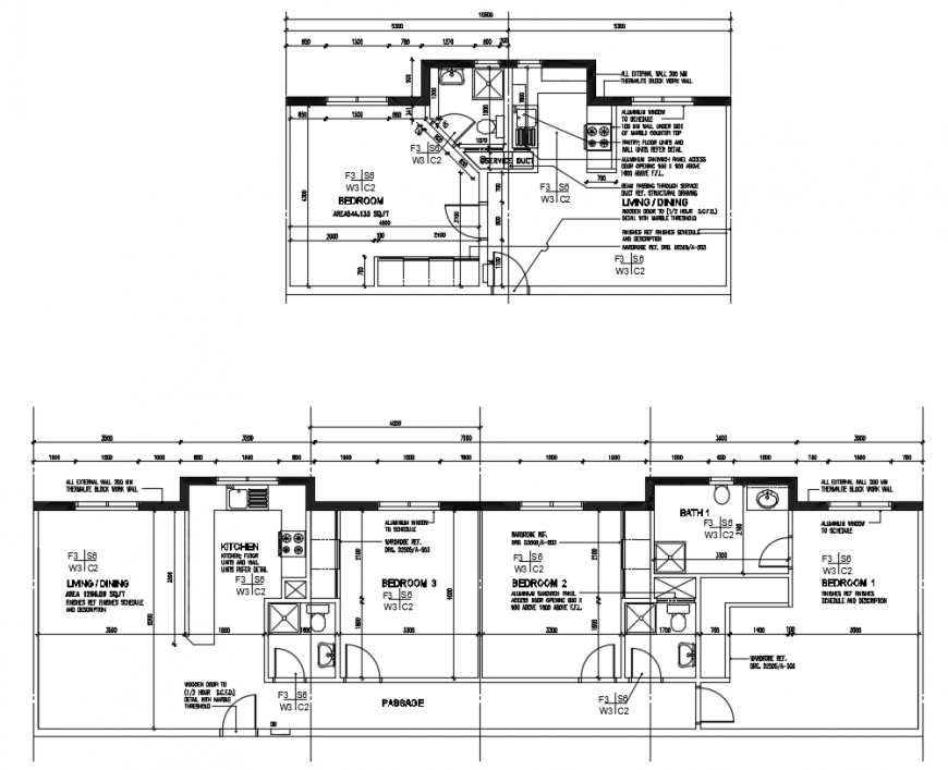
2d cad drawing of three bedroom apartment autocad software detailed with living and dining area with kitchen outlet and hall common toilet area with detailed main door and two bedroom with long passage and one masgter bedroom with bhuge space witrh attcahed tgoilet area and wadrobe arewa.
Uploaded by:
Eiz
Luna

