2d view of school building layout floor plan autocad software file
Description
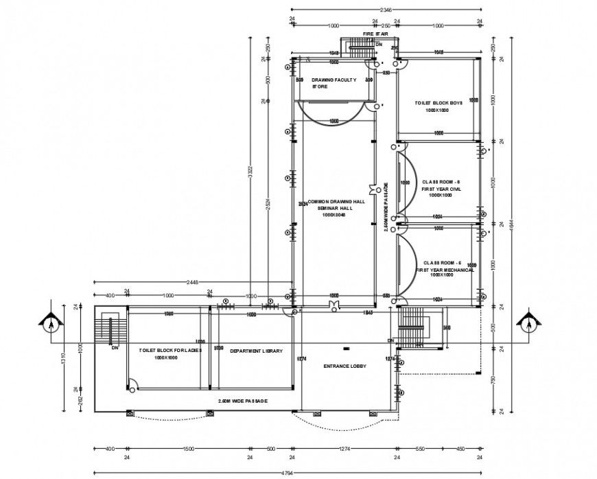
2d view of school building layout floor plan autocad software file that shows work plan drawings of building along with floor level details and room cabins details. Dimension hidden line details with staircase and section line details also included in drawings.
Uploaded by:
Eiz
Luna

