Layout plan of school building 2d view CAD drawings autocad file
Description
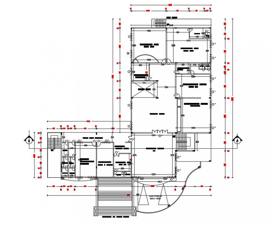
Layout plan of school building 2d view CAD drawings autocad file that shows work plan drawings of building along with floor level details and room cabins details. Dimension hidden line details with staircase and section line details also included in drawings.
Uploaded by:
Eiz
Luna

