Floor layout CAD drawings details of kitchen area dwg file
Description
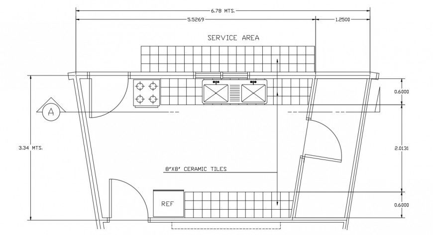
Floor layout CAD drawings details of kitchen area dwg file that shows work plan drawings detaisl kitchen area along with kitchen interior dimension details and kitchen furniture automation blocks details. gas-stove detaisl and kitchen sink detials also included in drawings.
Uploaded by:
Eiz
Luna

