House floor plans cad drawing
Description
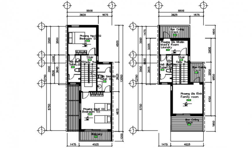
Autocad drawing of a residential house floor plans showing all the required details like space names with furniture layout and circulation space, wall thickness with respective material hatching and door-window openings, required dimensions of rooms, surrounding landscape with entry-exit and parking space, etc.
Uploaded by:
Eiz
Luna

