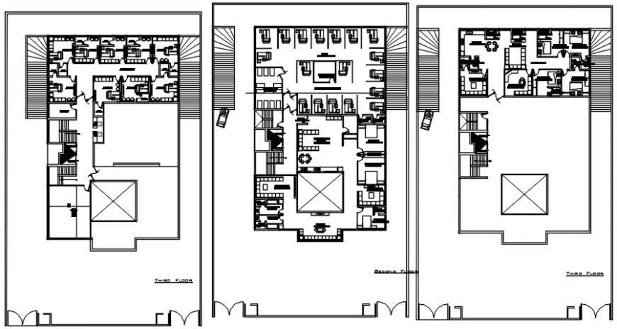
Second and third floor plan details of hospital building dwg file
Description
Second and third floor plan details of hospital building that includes a detailed view of reception area and waiting area with consultant room details specialized departments, operation theater and cleaning departments details pharmacy stores, special and general ward, with specimen collection and emergency laboratory, waiting rooms and x-ray room details provided with rest area and emergency laboratory, sanitary facilities details and culture media and much more of hospital plan.
Uploaded by:
Eiz
Luna

