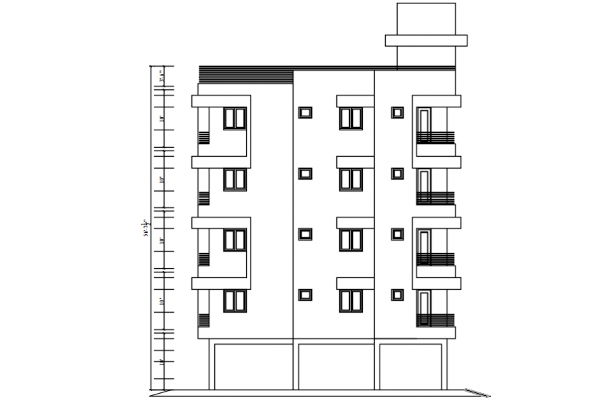
Right Side elevation drawing details of apartment building dwg file
Description
Right Side elevation drawing details of apartment building that includes a detailed view of flooring view with doors and windows view and staircase view details, balcony view with wall design, dimensions and roof or terrace view and much more of apartment building details.
Uploaded by:
Eiz
Luna

