Resort swimming pool 2d top view
Description
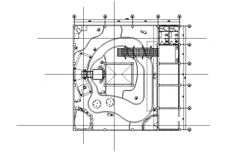
Swimming pool top view detail 2d. here there is top view 2d detail file with plumbing detail in auto cad format
Uploaded by:
Eiz
Luna
Swimming pool top view detail 2d. here there is top view 2d detail file with plumbing detail in auto cad format
Uploaded by:
Luna