2 d cad drawing of corporate building auto cad software
Description
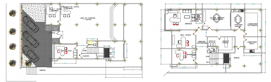
2d cad drawing of corporate bulding autocad software tht details with car parking area and three office cabins with staircase area and toilet area and wide space office.
Uploaded by:
Eiz
Luna

