House kitchen section, elevation and layout plan with furniture drawing details dwg file
Description
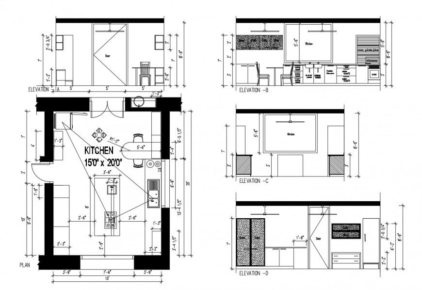
House kitchen section, elevation and layout plan with furniture drawing details that includes a detailed view of all sided section details of kitchen with wall design and tile design, dimensions details and furniture details, interior details, cooking area with platform area, gas stove and sink and plumbing details and electrical equipment details with chimney and exhaustion with ceiling details and much more of kitchen details in auto-cad file with free download available.
Uploaded by:
Eiz
Luna
