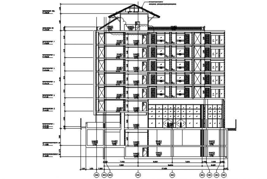
Section of an hotel in autocad
Description
Section of an hotel in autocad showing all the required details like wall thickness with door-window openings and respective material description by hatching, vertical dimensions with floor to floor hieghts, room specification with furniture layout and ciruclation space, roofing details, etc.
Uploaded by:
Eiz
Luna

