2 d cad drawing of closet elevation auto cad software
Description
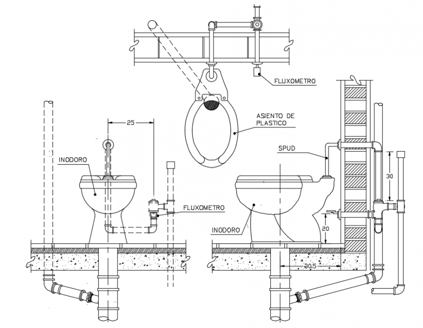
2d cad drawing of closet elevation autocad software detailed with three drawings of closet with top view ,side view and front view with description and pipelines connection been shown in the drawing.
File Type:
DWG
File Size:
785 KB
Category::
Dwg Cad Blocks
Sub Category::
Sanitary CAD Blocks And Model
type:
Gold
Uploaded by:
Eiz
Luna

