School dining area hall layout plan cad drawing details dwg file
Description
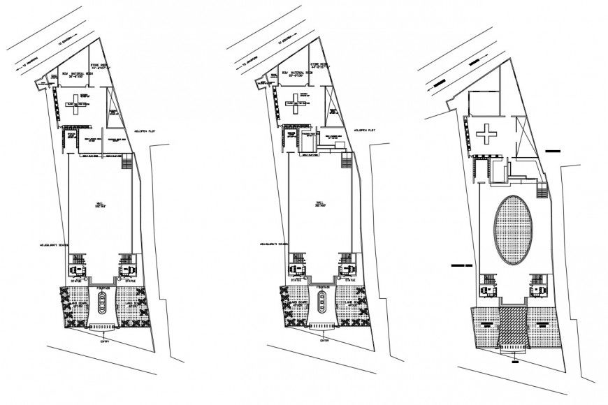
School dining area hall layout plan cad drawing details that includes reception area with waiting lounge, dining area with banquet hall and kitchen and cleaning department details and staff room and sanitary facilities provides with furniture details with interior details and much more of restaurant project with free download auto-cad file.
Uploaded by:
Eiz
Luna

