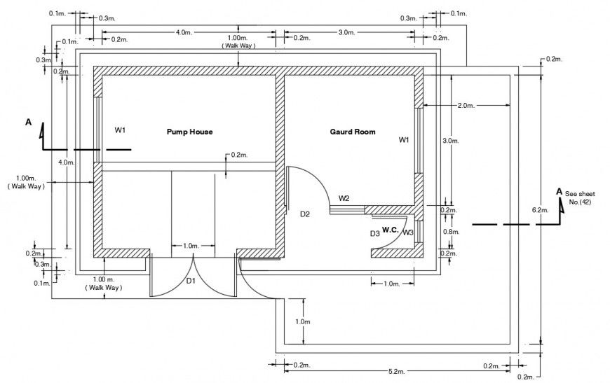
CAD drawings of pump house layout plan details in autocad file
Description
CAD drawings of pump house layout plan details in autocad file that shows floor plan drawings details along with room dimension details and door window blocks details. Door window blocks dteials and floor level dteials also included in drawings.
Uploaded by:
Eiz
Luna

