Free residence bungalow project cad file
Description
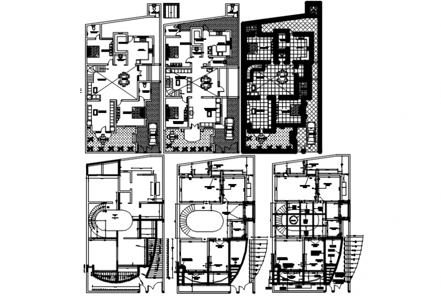
find here architecture layout plan describe drawing room, living room, dining area, master bedroom, pooja room, kitchen drawing with all furniture arrangement top view, also have final plan view about floor detail, blocks, and landscaping of bungalow project with free download feature
Uploaded by:
Eiz
Luna

