Floor plan distribution drawing details of technical institute dwg file
Description
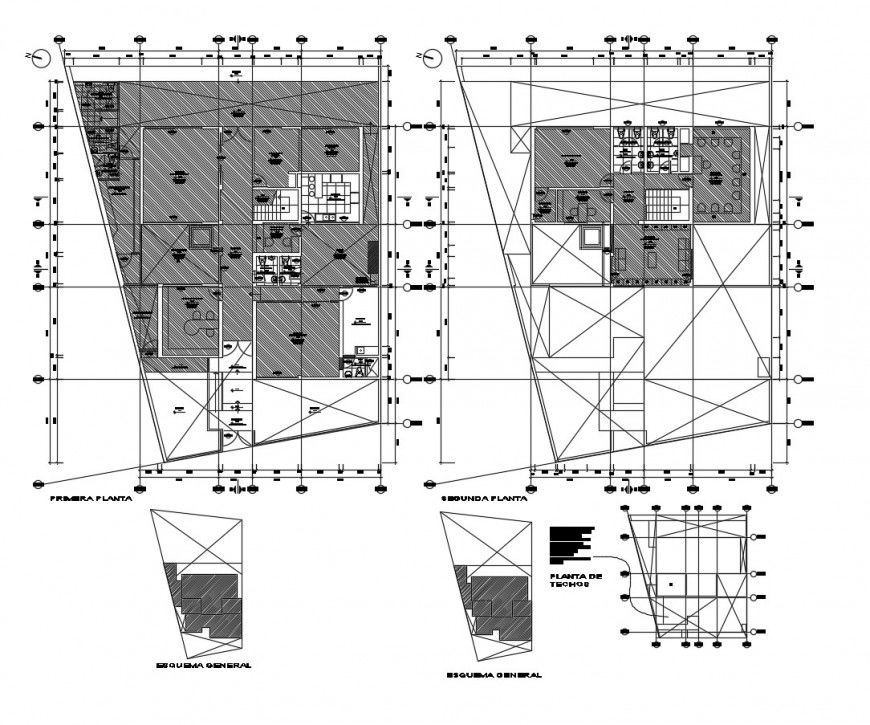
Floor plan distribution drawing details of technical institute that includes a detailed view of main entry gate with parking area for students and staff and classrooms, stream departments, library and laboratory, staff room and cultural hall with sanitary for staff and sanitary for students, canteen/cafeteria, sports ground, meeting room, cleaning department, admission office, clerk room, principal or head office and much more of college project with free download feature.
Uploaded by:
Eiz
Luna
