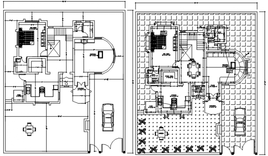
Ground floor and first floor layout plan bungalow project
Description
The architecture layout plan of the ground floor and first-floor includes all furniture detail, parking area and garden landscaping design in AutoCAD software, download in a free cad file and get more details about bungalow project.
Uploaded by:
Eiz
Luna

