Electrical layout plan of residence project cad file
Description
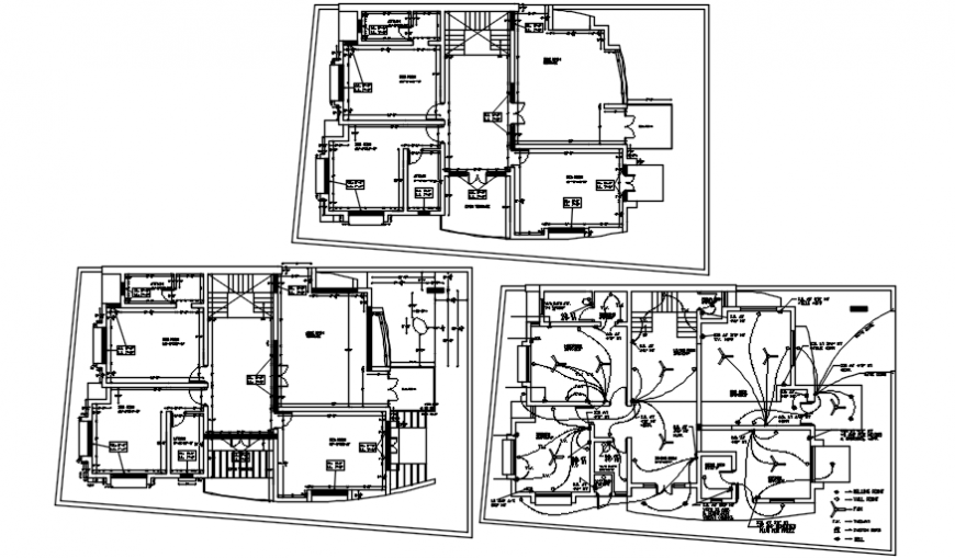
find here layout plan includes ceiling fan point, ceiling light point, and wall switchboard along with structure detail in autocad software, download in a free cad file and learn about electrical residence project
Uploaded by:
Eiz
Luna

