Foundation Design
Description
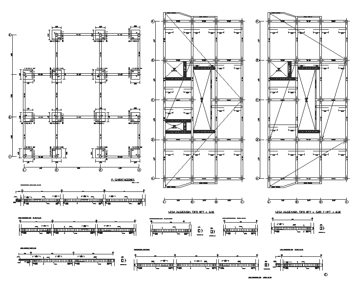
Foundation engineering is the application of soil mechanics and rock mechanicsin the design of foundation elements of structures.Foundation Design DWG file, Foundation Design Detail,

Uploaded by:
john
kelly

Uploaded by:
kelly