Toilet of guard house plan, installation and plumbing details dwg file
Description
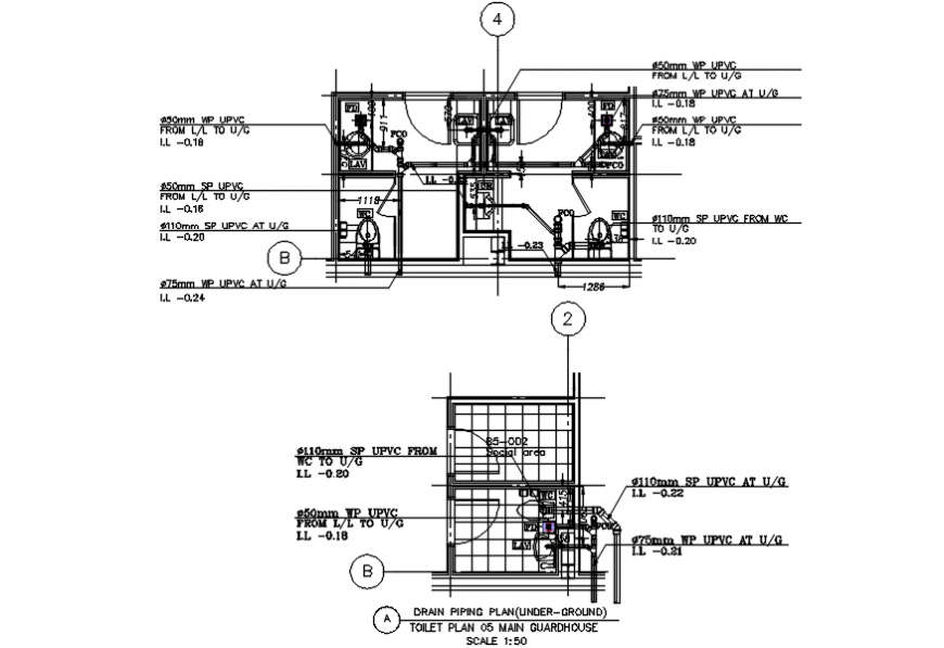
Toilet of guard house plan, installation and plumbing details here you can download a free auto-cad file of toilet plan details with toilet sectional details and passage, sanitary equipment installation details, doors and ventilation details with plumbing details and interior details with dimensions details, wall section details and much more of sanitary installation details.
File Type:
DWG
File Size:
532 KB
Category::
Interior Design
Sub Category::
Bathroom Interior Design
type:
Gold
Uploaded by:
Eiz
Luna
