CAD Footing structure drawings 2d view autocad file
Description
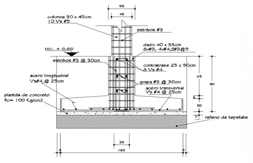
CAD Footing structure drawings 2d view autocad file that shows reinforcement details in tension and compression zone along with main and distribution hooks up and bent up bars detaisl. STirrups detaisl to hold up bars in position along with footing detail and the structure is a reinforced concrete cement (RCC) structure.
Uploaded by:
Eiz
Luna

